✓
Lagt til i forespørsel!
- Forside
- |
- Maskin og utstyr
- |
- Toalettkabin 3 dame og 1 herr…
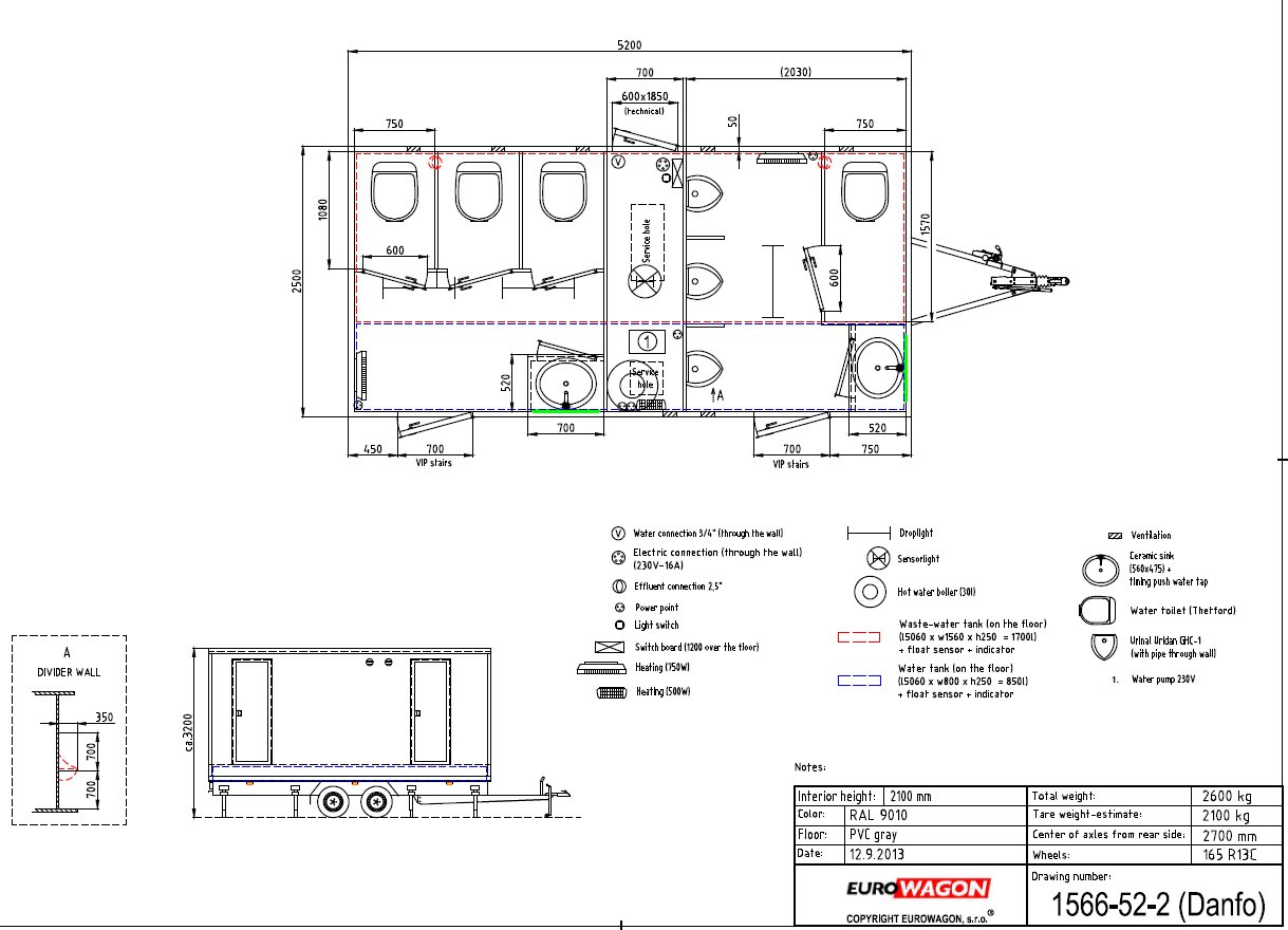
Toalettkabin 3 dame og 1 herre + 3 urinal
Vogna er delt inn med separate dame og herretoaletter.
Dameavdelingen har 3 toaletter og vask
Herreavdelingen har 1 toalett + 3 urinal og vask.
Denne Eurowagen toalettkabinen er utstyrt med intern tank, noe som gjør den perfekt for plasser uten tilgang til avløp. Den interne tanken gir fleksibel plassering og enkel håndtering på både korte og lengre prosjekter.
Vanntank: 850l
Avfallstank: 1700l
PDF med tegninger i bildekarusellen.
Toalettvogn dame og herre
| Antall personer | 7 |
|---|---|
| Antall rom | 6 |
| Strøminntak | 230V 16A 1-fas |
| Utvendig lengde | 6,10 m |
| Utvendig bredde | 2,50 m |
| Totalhøyde | 3,20 m |
| Totalvekt | 3500 kg |









